
詳細資料:
襯膠隔膜閥產品用途:
G41J襯膠隔膜閥專用于控制非腐蝕性或一般腐蝕性介質,閥體內腔表面無襯里或覆有可供選擇的各種橡膠,適用于不同工作溫度和流體管路。襯膠隔膜閥的啟閉是依靠旋轉手輪而達到的。本閥在閥蓋上端標有可窺見閥門處啟或閉位置的顯示色別,以指示閥門的啟閉行程。當順時針放置手輪時,手輪即下移,閥瓣隨之帶動隔膜下降使通路截斷;反之則閥門即開啟,色別隨之顯露。
產品的性能及優點:
1.由於隔膜閥的流道平滑,流阻小,故而可獲得較大的流量。
2.由於密封件為富有彈性的橡膠隔膜。因此還具有較好的密封性和Z小的關閉力。
3.視膠隔膜閥的閥體內腔表面視復有廳供選擇的多種橡膠。因此具有 的耐腐蝕的特點。
4.本閥門與其它閥門Z大的區別在於:采用無填料函的構造;橡膠隔膜可使流道內的腐蝕性介質與所有驅動部件處於完全隔離的狀態,從而杜絕了通常閥門的“跑、冒、滴、漏”等弊端。
BS 5156標準。 驅動方式:手動、氣動(常開或常閉)、電動。法蘭連接隔膜閥 設計與制造符合中國國家標準基本結構形式:堰式,直流式 公稱壓力PN0.6~1.0(Mpa) 公稱能徑DN15-400(mm)
手動 | G41J(堰式) | 手動 | G641J(往復式) |
G41F5(堰式) | G641F5(往復式) | ||
G45J(直流式) | G6B41F(常閉式) | ||
G45F5(直流式) | G6B41F5(常閉式) | ||
電動 | G9B41J(防爆式) | 電動 | G941J(普通型) |
G9B41F5(防爆式) | G941F5(普通型) |
遵循規范 | STANDARD |
設計與制造 | GB12239 |
結構長度 | GB1221/JB1688 |
法蘭尺寸 | JB78/JB79(GB HG SH) |
壓力試驗 | GB/T13927 |
標簽 | GB12220 |
供貨 | GB/T12252 |
襯膠手動隔膜閥主要零部件材料表:
序號 | 零件名稱 | 灰鑄鐵 | 鑄鋼 | 不銹鋼 | 超低碳鋼 | ||
Z | C | P | R | PL | RL | ||
1 | 閥體、閥蓋、閥瓣 | HT250 | WCB | CF8 | CF8M | CF3 | CF3M |
2 | 閥桿 | 35 | 1Cr13 | 1Cr18Ni19Ti | 1Cr18Ni12Mo2Ti | 00Cr18Ni10 | 00Cr17Ni14Mo2 |
3 | 襯里層 | FEP(F46) PFA PCTFE(F3) | |||||
4 | 隔膜 | FEP(F46)/CR(氟丁橡膠) PFA(可溶性聚四氟乙烯)/FPDM(乙丙橡膠) | |||||
5 | 閥桿螺母 | ZCuAL10Fe3 ZCuAL10Fe3 | |||||
6 | 螺栓 | 35 | 35 | 1Cr17Ni2 | 1Cr17Ni2 | 1Cr17Ni9Ti | 1Cr17Ni9Ti |
7 | 螺母 | 45 | 45 | 0Cr18Ni9 | 0Cr18Ni9 | 0Cr18Ni9 | 0Cr18Ni9 |
8 | 手輪 | HT200 | HT200 | WCC | WCC | WCC | WCC |

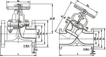
襯膠手動隔膜閥外形連接尺寸及重量:
型號 | 公稱通徑DN(mm) | 尺寸(㎜) | |||||||||
L | D | D1 | D0 | Z-φd | H | H1 | H2 | H3 | 重量 | ||
G41J10 | 15 | 125 | 95 | 65 | 120 | 4-φ14 | - | - | - | - | 3.8 |
20 | 135 | 105 | 75 | 120 | 4-φ14 | - | - | - | - | 4.2 | |
25 | 145 | 115 | 85 | 120 | 4-φ14 | 121 | 135 | - | - | 4.5 | |
32 | 160 | 1135 | 100 | 120 | 4-φ18 | 132 | 150 | - | - | 7 | |
40 | 180 | 145 | 110 | 140 | 4-φ18 | 156 | 176 | - | - | 9 | |
50 | 210 | 160 | 125 | 140 | 4-φ18 | 169 | 195 | - | - | 12 | |
65 | 250 | 180 | 145 | 200 | 4-φ18 | 202 | 236 | - | - | 18 | |
80 | 300 | 195 | 160 | 200 | 4-φ18 | 216 | 256 | - | - | 24.5 | |
100 | 350 | 215 | 180 | 280 | 8-φ18 | 270 | 322 | - | - | 38.5 | |
125 | 400 | 245 | 210 | 320 | 8-φ18 | 338 | 406 | - | - | 60 | |
150 | 460 | 280 | 240 | 320 | 8-φ23 | 384 | 464 | - | - | 82 | |
G41J | 200 | 570 | 335 | 295 | 400 | 8-φ23 | 518 | 638 | - | - | 149 |
250 | 680 | 390 | 350 | 500 | 12-φ23 | 598 | 734 | - | - | 240 | |
300 | 790 | 440 | 400 | 560 | 12-φ23 | 698 | 778 | - | - | 350 | |
350 | 900 | 500 | 460 | 560 | 16-φ23 | 723 | 883 | - | - | 392 | |
400 | 1000 | 565 | 515 | 640 | 16-φ25 | 868 | 1078 | - | - | 585 | |
G45J-10 | 32 | 180 | 135 | 100 | 120 | 4-φ18 | - | - | - | - | 7 |
40 | 180 | 145 | 110 | 140 | 4-φ18 | - | - | 203 | 216 | 8.5 | |
50 | 210 | 160 | 125 | 140 | 4-φ18 | - | - | 213 | 229 | 14 | |
65 | 250 | 180 | 145 | 200 | 4-φ18 | - | - | 248 | 268 | 18 | |
80 | 300 | 195 | 160 | 200 | 4-φ18 | - | - | 281 | 305 | 30 | |
100 | 350 | 215 | 180 | 280 | 8-φ18 | - | - | 332 | 362 | 43 | |
125 | 400 | 245 | 210 | 320 | 8-φ18 | - | - | - | - | 67 | |
150 | 460 | 280 | 240 | 320 | 8-φ23 | - | - | 450 | 496 | 80 | |
200 | 570 | 335 | 295 | 400 | 8-φ23 | - | - | 594 | 654 | 150.2 | |
250 | 680 | 390 | 350 | 500 | 12-φ23 | - | - | 695 | 771 | 238 | |
襯膠隔膜閥技術參數:
☆接口尺寸:法蘭DN15 —DN 300 ;
☆工作壓力: 1.6MPA;
☆介質溫度: 按照襯里和隔膜材料≤85℃、≤100℃、≤120℃、≤150℃;
☆閥體材質: 鑄鐵、鑄鋼、不銹鋼;
☆閥蓋材質: 鑄鐵、鑄鋼、不銹鋼;
☆襯里隔膜:可選性各類橡膠;
☆閥瓣材質: 鑄鐵、鑄鋼;
☆閥桿材質: 碳鋼、不銹鋼;
☆手輪:鑄鐵
襯膠隔膜閥用途和主要性能規范
視裹材質(代號) | 適用溫度 | 適用介質 |
硬橡膠(NR) | -10℃~85℃ | 除強氧化劑(如銷酸、鉻酸、濃硫酸及過氧化氫等有有機溶劑)外的氫氯酸、氟硅酸、蟻酸和酚酸、鹽酸、30%硫酸、50%氫氟酸、80%磷酸、堿、鹽類、鍍金屬溶液、氫氧化鈉、氫氧化鉀、中性鹽水溶液、10%次氯酸鈉、濕氯氣、氨水、大部分醇類,有機酸及醛類等。 |
軟橡膠(BR) | -10℃~85℃ | 具有良好的耐磨性能。主要用于50%以下的硫酸,氫氧化鈉、氫氧化鉀、中性鹽浴溶液及氨液,水泥、粘土、煤渣灰、顆粒狀化肥及磨損性較強的固態流體,各種濃度稠粘液等。 |
丁基膠(IIR) | -10℃~120℃ | 抗腐蝕、耐磨耗。能耐 多數的有機酸、堿和氫氧化合物、無機鹽及無機酸元素氣體、醇類、醛類、醚類、酮類、酯類等。 |
氯丁膠 | (CR)-10℃~120℃ | 動物油、植物油和無機潤滑油及pH值變化范圍很大的腐蝕性泥漿,抗磨性好。 |
鑄鐵不視裹 | -40℃~100℃ | 非腐蝕性介質 |
訂貨須知:
一、①G41J襯膠隔膜閥產品名稱與型號②G41J襯膠隔膜閥口徑③G41J襯膠隔膜閥是否帶附件以便我們的為您正確選型。
二、若已經由設計單位選定型號,請按型號直接向我們華楊銷售部訂購。
三、當使用的場合非常重要或環境比較復雜時,請您盡量提供設計圖紙和詳細參數,由我們華楊的閥門為您審核把關。